Overview
At PS Logistics Park - a spacious warehouse in Kona Expressway, businesses scale faster, teams work smarter, and innovation thrives. As a part of the industrial park in Kolkata, it fosters a people-first environment where safety and well-being come first. Work moves closer to where people live, reducing commute times and expanding access. Seamlessly connected through multimodal transport, it ensures smooth movement of goods and people.
PS Logistics Park – Finest Logistics, Close to Your City
From RCC warehouses to skill development centres, every space at this warehouse near Kolkata is designed to boost productivity, comfort, and care. Anchored on three pillars - driven by progress, built for growth, and designed for people. Experience the finest logistics within a secure environment!
Pricing (Inclusive of GST & extra charges)
7500 sq ft - 10000 sqft
2.99 Cr Onwards
10001 sq ft - 15000 sq ft
3.89 Cr Onwards
15001 sq ft - 20000 sq ft
6.50 Cr Onwards
20001 sq ft - 25000 sq ft
8 Cr Onwards
25001 sq ft & Above
10 Cr Onwards
Gallery
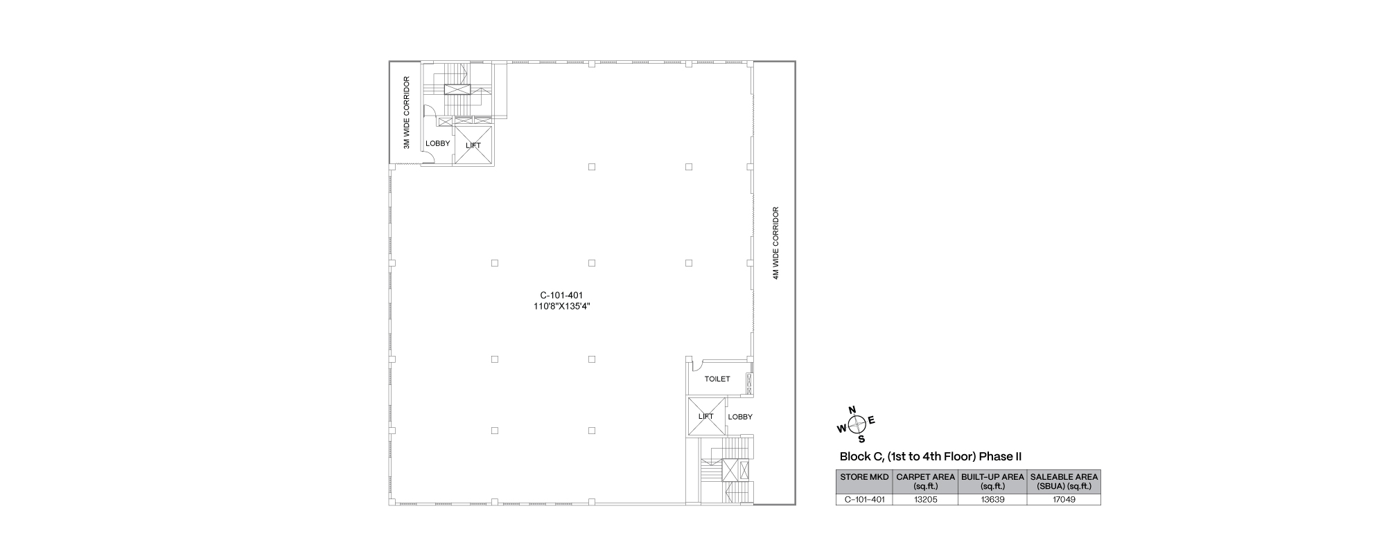
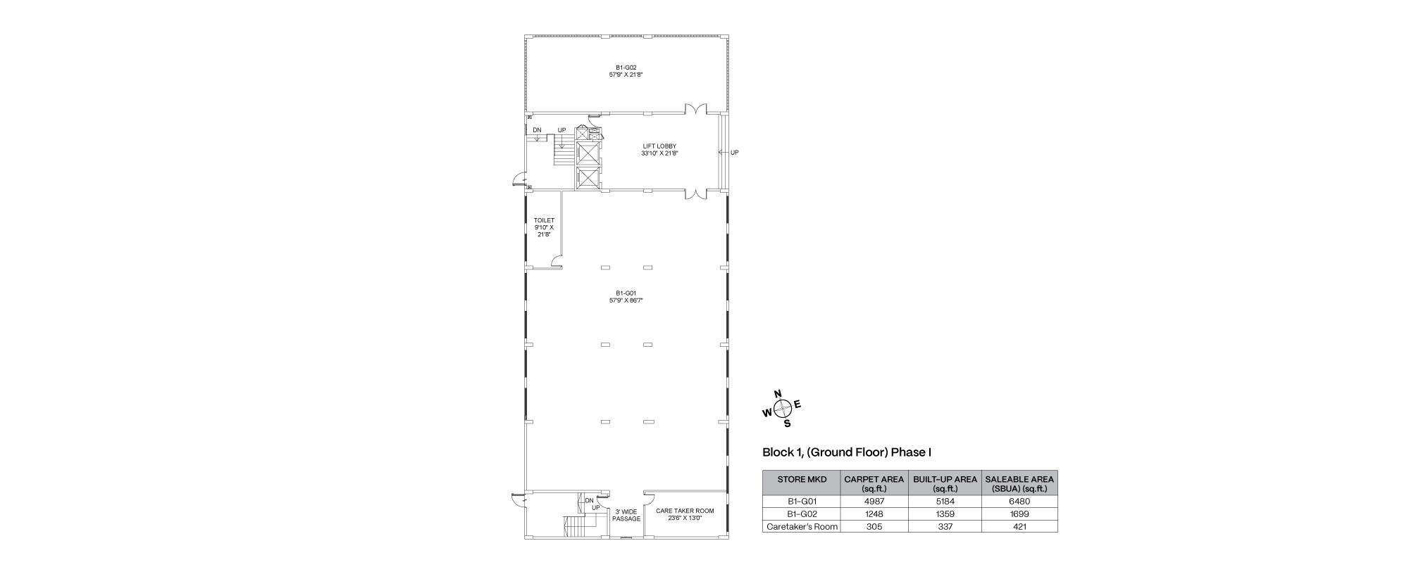
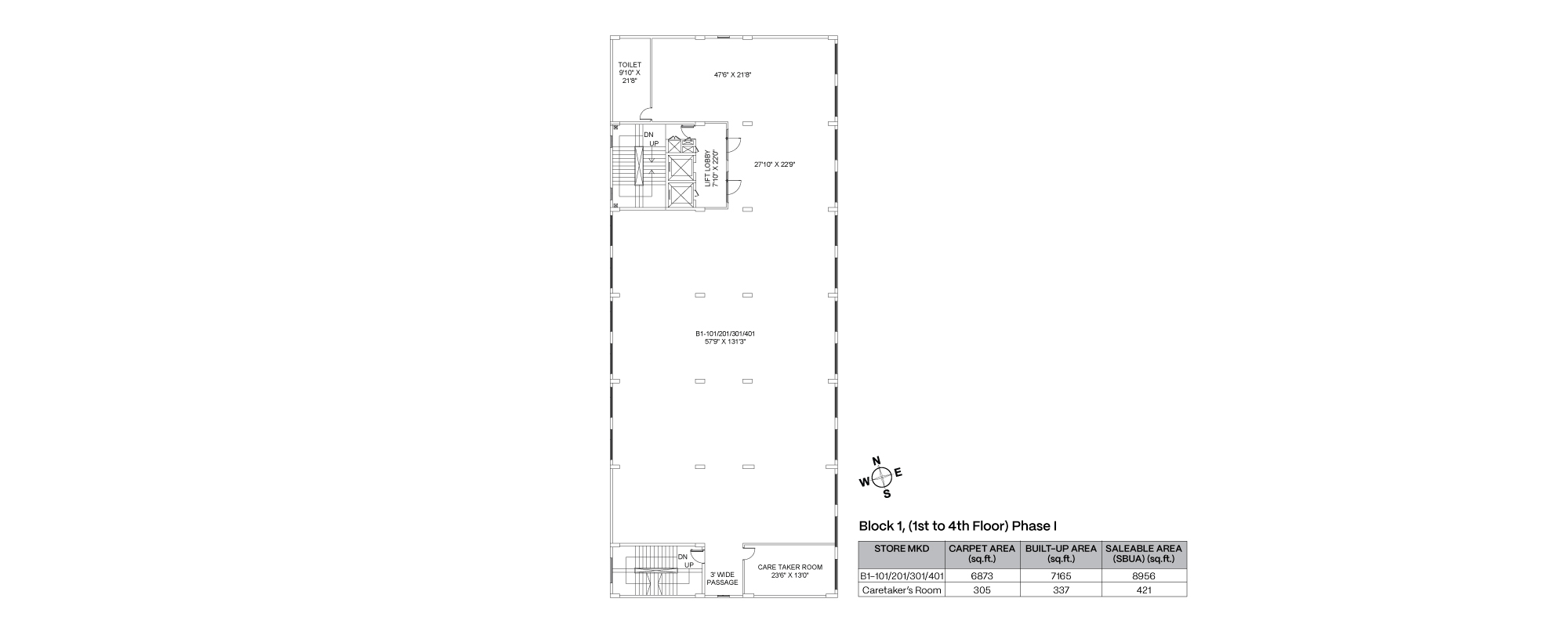
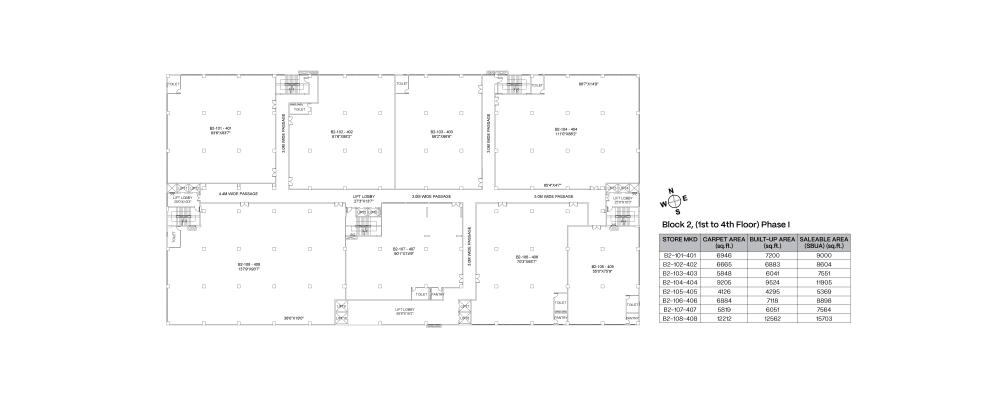
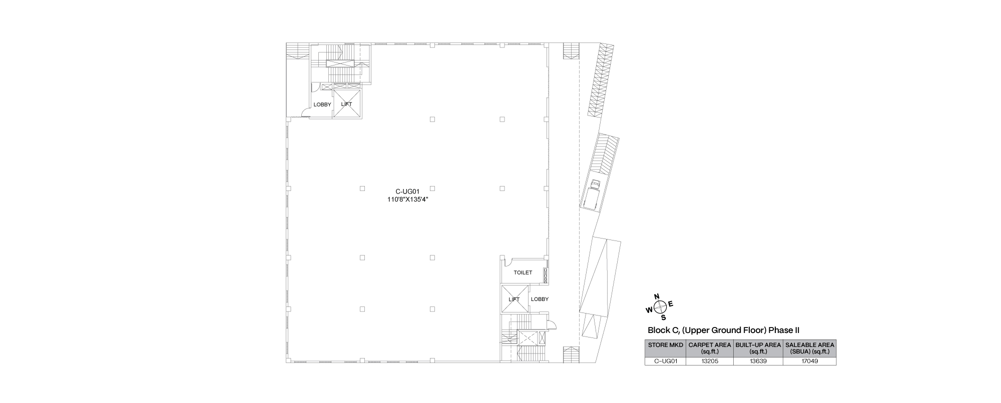
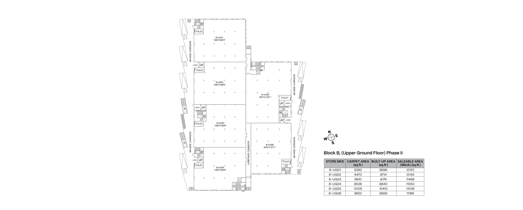
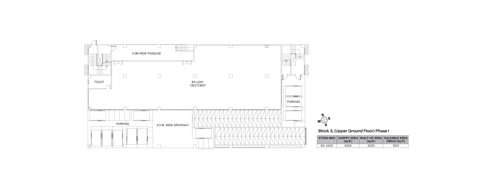
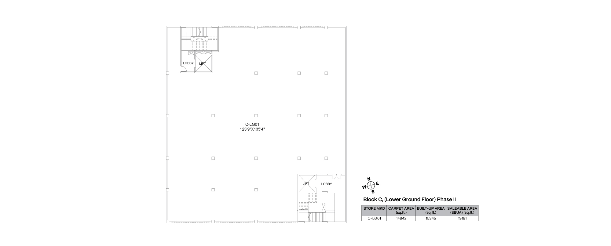
Site Plan
Location
Kona Expressway
PS Logistics Park
Kona Expressway-
Healthcare
-
Education
-
Leisure
-
Commute

.png)